- 東京の賃貸オフィス・貸事務所TOP
- 品川区
- 五反田・大崎・西品川周辺エリア
- ONEST西五反田スクエア(オーネストニシゴタンダスクエア)
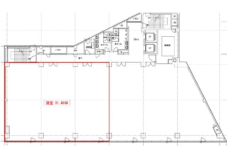
ONEST西五反田スクエア 3階 91.46坪 賃貸オフィス詳細
- 物件ID
- 111033
- ONEST西五反田スクエア(オーネストニシゴタンダスクエア) 3階 91.46坪
-
”ONEST西五反田スクエア(オーネストニシゴタンダスクエア)”は、 大崎広小路駅から徒歩5分、戸越銀座駅から徒歩9分、五反田駅から徒歩10分、不動前駅から徒歩10分 の賃貸オフィスです。
1988年1月に竣工。構造は鉄骨鉄筋コンクリート(SRC造)。耐震構造は新耐震。
利用可能路線は山手線、東急目黒線、東急池上線で、 用途は賃貸オフィスとなっています。最寄り駅は大崎広小路駅と戸越銀座駅と五反田駅と不動前駅。 住所は品川区西五反田7-24-5です。
ぜひ一度、内覧にお越しくださいませ。
フロア概要
| 階数 | 3階 | 面積 | 91.46坪(302.35m²) |
|---|---|---|---|
| 賃料/坪 | 相談 | 共益費/坪 | 賃料に含む |
| 月額賃料 (共益費込) |
相談 | 入居日 | 2026年2月1日 |
| 敷金 (保証金) |
12ヶ月 | 礼金 | 無し |
| 償却費 | 無し | 更新料 | 無し |
| 契約 | 普通借家(2年) | ||
ビル概要
| 物件名 | ONEST西五反田スクエア(オーネストニシゴタンダスクエア) | ||
|---|---|---|---|
| 所在地 | 品川区西五反田7-24-5 | ||
| 利用可能駅 | |||
| 利用可能 路線 |
|||
| 竣工 | 1988年1月 | リニューアル | 2020年 |
| 構造 | 鉄骨鉄筋コンクリート(SRC造) | 規模 | B1階/8階 |
| 耐震構造 | 新耐震 | ||
個別空調
新耐震
光ファイバー利用可
時間制限有り
OAフロア有り
駐車場有り
アクセス
このビルの募集中フロア一覧
| 所在階 | 面積 | 入居予定 | 賃料 | 共益費 | 賃料総額 |
|---|---|---|---|---|---|
| 1階 | 49.8坪 | - | - | - | - |
| 1階 | 19.22坪 | - | - | - | - |
| 2階 | 51.41坪 | - | - | - | - |
| 2階 | 122.35坪 | - | - | - | - |
| 3階 | 91.46坪 | 2026年2月1日 | 相談 | 賃料に含む | - |
| 3階 | 173.87坪 | - | - | - | - |
| 4階 | 60.92坪 | - | - | - | - |
| 4階 | 173.87坪 | - | - | - | - |
| 4階 | 112.95坪 | - | - | - | - |
| 5階 | 173.87坪 | - | - | - | - |
| 6階 | 173.94坪 | - | - | - | - |
| 7階 | 112.83坪 | - | - | - | - |
| 7階 | 60.92坪 | - | - | - | - |

