- 東京の賃貸オフィス・貸事務所TOP
- 千代田区
- 九段下・神保町・竹橋エリア
- SHONENGAHOー1(ショウネンガホウ1)
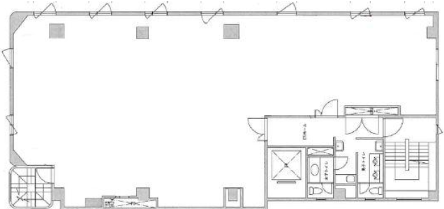
SHONENGAHOー1 3階 64.33坪 賃貸オフィス詳細
- 物件ID
- 106694
- SHONENGAHOー1(ショウネンガホウ1) 3階 64.33坪
-
”SHONENGAHOー1(ショウネンガホウ1)”は、 水道橋駅から徒歩5分、神保町駅から徒歩5分、九段下駅から徒歩7分 の賃貸オフィスです。
1993年8月に竣工。構造は鉄骨鉄筋コンクリート(SRC造)。耐震構造は新耐震。
利用可能路線は中央線(快速)、東西線、丸ノ内線、半蔵門線、都営大江戸線で、 用途は賃貸オフィスとなっています。最寄り駅は水道橋駅と神保町駅と九段下駅。 住所は千代田区西神田2-8-5です。
ぜひ一度、内覧にお越しくださいませ。
フロア概要
| 階数 | 3階 | 面積 | 64.33坪(212.66m²) |
|---|---|---|---|
| 賃料/坪 | 18,000円/坪 | 共益費/坪 | 無し |
| 月額賃料 (共益費込) |
1,157,940円 | 入居日 | 即 |
| 敷金 (保証金) |
6ヶ月 | 礼金 | 無し |
| 償却費 | 2ヶ月 | 更新料 | 1ヶ月 |
| 契約 | 普通借家(2年) | ||
ビル概要
| 物件名 | SHONENGAHOー1(ショウネンガホウ1) | ||
|---|---|---|---|
| 所在地 | 千代田区西神田2-8-5 | ||
| 利用可能駅 | |||
| 利用可能 路線 |
|||
| 竣工 | 1993年8月 | リニューアル | - |
| 構造 | 鉄骨鉄筋コンクリート(SRC造) | 規模 | B1階/6階 |
| 耐震構造 | 新耐震 | ||
個別空調
新耐震
光ファイバー利用可
24時間利用可
要確認
要確認
アクセス
このビルの募集中フロア一覧
| 所在階 | 面積 | 入居予定 | 賃料 | 共益費 | 賃料総額 |
|---|---|---|---|---|---|
| B1階 | 40.39坪 | - | - | - | - |
| 1階 | 41.35坪 | - | - | - | - |
| 1階 | 31.53坪 | - | - | - | - |
| 2階 | 61.49坪 | - | - | - | - |
| 3階 | 61.54坪 | - | - | - | - |
| 3階 | 64.33坪 | 即 | 18,000円/坪 | 無し | 1,157,940円/月 |
| 4階 | 62.04坪 | 即 | 18,000円/坪 | 賃料に含む | 1,116,720円/月 |
| 5階 | 42.29坪 | - | - | - | - |
| 6階 | 23.52坪 | - | - | - | - |

