- 東京の賃貸オフィス・貸事務所TOP
- 新宿区
- 新宿・御苑・歌舞伎町エリア
- Uni-works新宿御苑(ユニワークスシンジュクギョエン)
Uni-works新宿御苑 2階 87.92坪 賃貸オフィス詳細
- 物件ID
- 106650
- Uni-works新宿御苑(ユニワークスシンジュクギョエン) 2階 87.92坪
-
”Uni-works新宿御苑(ユニワークスシンジュクギョエン)”は、 新宿御苑前駅から徒歩3分、四谷三丁目駅から徒歩9分、新宿三丁目駅から徒歩9分 の賃貸オフィスです。
1985年4月に竣工。構造は鉄骨鉄筋コンクリート(SRC造)。耐震構造は新耐震。
利用可能路線は山手線、中央線(快速)、丸ノ内線、副都心線、都営大江戸線、都営新宿線で、 用途は賃貸オフィスとなっています。最寄り駅は新宿御苑前駅と四谷三丁目駅と新宿三丁目駅。 住所は新宿区新宿1-12-5です。
ぜひ一度、内覧にお越しくださいませ。
フロア概要
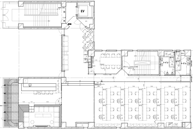
| 階数 | 2階 | 面積 | 87.92坪(290.65m²) |
|---|---|---|---|
| 賃料/坪 | 25,000円/坪 | 共益費/坪 | 賃料に含む |
| 月額賃料 (共益費込) |
2,198,000円 | 入居日 | 2026年4月相談 |
| 敷金 (保証金) |
8ヶ月 | 礼金 | 無し |
| 償却費 | 無し | 更新料 | 無し |
| 契約 | 定期借家 | ||
ビル概要
| 物件名 | Uni-works新宿御苑(ユニワークスシンジュクギョエン) | ||
|---|---|---|---|
| 所在地 | 新宿区新宿1-12-5 | ||
| 利用可能駅 | |||
| 利用可能 路線 |
|||
| 竣工 | 1985年4月 | リニューアル | 2020年12月 |
| 構造 | 鉄骨鉄筋コンクリート(SRC造) | 規模 | B2階/6階 |
| 耐震構造 | 新耐震 | ||
個別空調
新耐震
光ファイバー利用可
24時間利用可
OAフロア有り
要確認
アクセス
このビルの募集中フロア一覧
| 所在階 | 面積 | 入居予定 | 賃料 | 共益費 | 賃料総額 |
|---|---|---|---|---|---|
| 1階 | 48.88坪 | 2026年4月相談 | 28,000円/坪 | 賃料に含む | 1,368,640円/月 |
| 2階 | 87.92坪 | 2026年4月相談 | 25,000円/坪 | 賃料に含む | 2,198,000円/月 |
| 3階 | 90.21坪 | - | - | - | - |
| 5階 | 60.99坪 | - | - | - | - |

