- 東京の賃貸オフィス・貸事務所TOP
- 中央区
- 茅場町・八丁堀・新川・兜町周辺エリア
- コア京橋ビル(コアキョウバシビル)
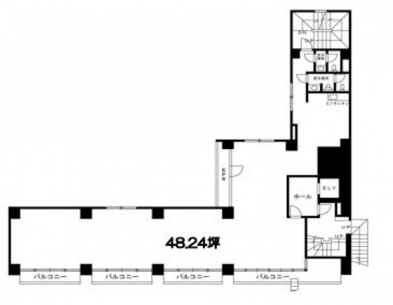
コア京橋ビル 8階 48.24坪 賃貸オフィス詳細
- 物件ID
- 105994
- コア京橋ビル(コアキョウバシビル) 8階 48.24坪
-
”コア京橋ビル(コアキョウバシビル)”は、 八丁堀駅から徒歩3分、茅場町駅から徒歩6分、新富町駅から徒歩9分、京橋駅から徒歩9分、日本橋駅から徒歩10分 の賃貸オフィスです。
1998年4月に竣工。構造は鉄骨鉄筋コンクリート(SRC造)。耐震構造は新耐震。
利用可能路線は有楽町線、日比谷線、銀座線、京葉線で、 用途は賃貸オフィスとなっています。最寄り駅は八丁堀駅と茅場町駅と新富町駅と京橋駅と日本橋駅。 住所は中央区八丁堀2-21-2です。
ぜひ一度、内覧にお越しくださいませ。
フロア概要
| 階数 | 8階 | 面積 | 48.24坪(283.74m²) |
|---|---|---|---|
| 賃料/坪 | 15,500円/坪 | 共益費/坪 | 3,500円/坪 |
| 月額賃料 (共益費込) |
916,560円 | 入居日 | 即 |
| 敷金 (保証金) |
10ヶ月 | 礼金 | 無し |
| 償却費 | 1ヶ月 | 更新料 | 1ヶ月 |
| 契約 | 普通借家(2年) | ||
ビル概要
| 物件名 | コア京橋ビル(コアキョウバシビル) | ||
|---|---|---|---|
| 所在地 | 中央区八丁堀2-21-2 | ||
| 利用可能駅 | |||
| 利用可能 路線 |
|||
| 竣工 | 1998年4月 | リニューアル | - |
| 構造 | 鉄骨鉄筋コンクリート(SRC造) | 規模 | B1階/9階 |
| 耐震構造 | 新耐震 | ||
個別空調
新耐震
光ファイバー利用可
24時間利用可
OAフロア有り
駐車場無し
アクセス
このビルの募集中フロア一覧
| 所在階 | 面積 | 入居予定 | 賃料 | 共益費 | 賃料総額 |
|---|---|---|---|---|---|
| 3階 | 102.5坪 | - | - | - | - |
| 4階 | 85.83坪 | - | - | - | - |
| 7階 | 63.3坪 | - | - | - | - |
| 8階 | 48.24坪 | 即 | 15,500円/坪 | 3,500円/坪 | 747,720円/月 |
| 9階 | 24.63坪 | - | - | - | - |

