- 東京の賃貸オフィス・貸事務所TOP
- 中央区
- 茅場町・八丁堀・新川・兜町周辺エリア
- 新川1丁目ビル(シンカワ1チョメビル)
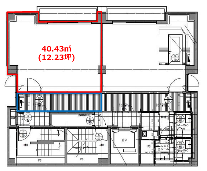
新川1丁目ビル 7階 B 12.33坪 賃貸オフィス詳細
- 物件ID
- 100510
- 新川1丁目ビル(シンカワ1チョメビル) 7階 12.33坪
-
”新川1丁目ビル(シンカワ1チョメビル)”は、 茅場町駅から徒歩3分、水天宮前駅から徒歩6分、八丁堀駅から徒歩9分、日本橋駅から徒歩9分、人形町駅から徒歩10分 の賃貸オフィスです。
1989年12月に竣工。構造は鉄筋コンクリート(RC造)。耐震構造は新耐震。
利用可能路線は京葉線、都営浅草線、日比谷線、半蔵門線で、 用途は賃貸オフィスとなっています。最寄り駅は茅場町駅と水天宮前駅と八丁堀駅と日本橋駅と人形町駅。 住所は中央区新川1-2-14です。
ぜひ一度、内覧にお越しくださいませ。
フロア概要
| 階数 | 7階 B | 面積 | 12.33坪(40.76m²) |
|---|---|---|---|
| 賃料/坪 | 相談 | 共益費/坪 | 2,000円/坪 |
| 月額賃料 (共益費込) |
相談 | 入居日 | 2026年4月1日 |
| 敷金 (保証金) |
12ヶ月 | 礼金 | 無し |
| 償却費 | 無し | 更新料 | 1ヶ月 |
| 契約 | 普通借家(3年) | ||
| 備考 | 水道料:5,000円(固定) | ||
ビル概要
| 物件名 | 新川1丁目ビル(シンカワ1チョメビル) | ||
|---|---|---|---|
| 所在地 | 中央区新川1-2-14 | ||
| 利用可能駅 | |||
| 利用可能 路線 |
|||
| 竣工 | 1989年12月 | リニューアル | 2019年11月 |
| 構造 | 鉄筋コンクリート(RC造) | 規模 | B3階/8階 |
| 耐震構造 | 新耐震 | ||
個別空調
新耐震
光ファイバー利用可
24時間利用可
OAフロア有り
駐車場有り
アクセス
このビルの募集中フロア一覧
| 所在階 | 面積 | 入居予定 | 賃料 | 共益費 | 賃料総額 |
|---|---|---|---|---|---|
| 3階 | 68.48坪 | - | - | - | - |
| 4階 | 70.05坪 | - | - | - | - |
| 4階 | 34.06坪 | - | - | - | - |
| 4階 | 29.91坪 | - | - | - | - |
| 4階 | 13.74坪 | - | - | - | - |
| 4階 | 29.96坪 | - | - | - | - |
| 4階 | 16.43坪 | - | - | - | - |
| 4階 | 12.42坪 | - | - | - | - |
| 6階 | 50.5坪 | - | - | - | - |
| 6階 | 21.37坪 | - | - | - | - |
| 6階 | 11.36坪 | - | - | - | - |
| 6階 | 21.37坪 | - | - | - | - |
| 6階 | 10.42坪 | - | - | - | - |
| 7階 | 12.23坪 | - | - | - | - |
| 7階 | 30.42坪 | - | - | - | - |
| 7階 | 12.33坪 | 2026年4月1日 | 相談 | 2,000円/坪 | - |
| 8階 | 11.59坪 | - | - | - | - |

